takeofficeなら掲載物件の仲介手数料は無料です

品川シティビル(NTK品川ビル)

住所 東京都港区港南2-11-1
交通 JR山手線品川」 徒歩10分
京浜急行品川」 徒歩10分
りんかい線天王洲アイル」 徒歩13分
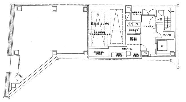
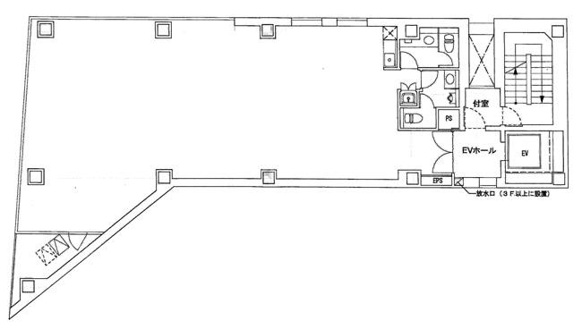
竣工 2007年03月 構造 鉄骨造
規模 地上8階 耐震基準 新耐震基準
床構造 フリーアクセス 40mm 空調設備 個別空調
天井高 2600mm 基準階面積 44.64坪(147.57m2)
コンセント容量 - 施工会社

最新の募集状況や類似物件については、
こちらにお問い合わせください。

品川シティビル(NTK品川ビル) 外観

外観

内見やお見積りなどの各種お問い合わせ

全物件
仲介手数料無料
仲介から
入居工事まで
ワンストップで対応
経験豊富なスタッフが
スピード感をもって
対応

周辺での似た条件の物件

非公開物件 多数あり!

お問い合わせフォーム