takeofficeなら掲載物件の仲介手数料は無料です

サクセス泉岳寺ビル

住所 東京都港区高輪2-20-29
交通 都営浅草線泉岳寺」 徒歩2分
JR山手線品川」 徒歩14分
東京メトロ南北線白金高輪」 徒歩14分
竣工 1988年12月 構造 鉄骨造
規模 地上9階 耐震基準 新耐震基準
床構造 - 空調設備 個別空調
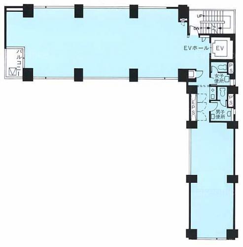
天井高 2500mm 基準階面積 47.49坪(156.99m2)
コンセント容量 - 施工会社

最新の募集状況や類似物件については、
こちらにお問い合わせください。

サクセス泉岳寺ビル 外観

外観

  • NOW PRINTING

    エントランス

  • 基準階

    基準階

  • 1F

    1F

  • 2F

    2F

  • 8~9F

    8~9F

内見やお見積りなどの各種お問い合わせ

全物件
仲介手数料無料
仲介から
入居工事まで
ワンストップで対応
経験豊富なスタッフが
スピード感をもって
対応

周辺での似た条件の物件

非公開物件 多数あり!

お問い合わせフォーム