takeofficeなら掲載物件の仲介手数料は無料です

京急第10ビル(旧:品川ビル)

住所 東京都港区高輪3-26-33
交通 JR山手線品川」 徒歩2分
京浜急行品川」 徒歩1分
京浜急行北品川」 徒歩12分
竣工 1976年05月 構造 SRC
規模 地上10階, 地下1階 耐震基準 新耐震基準
床構造 フリーアクセス 50mm 空調設備 セントラル+個別
天井高 2550mm 基準階面積 431.68坪(1427.04m2)
コンセント容量 50VA/m2 施工会社

最新の募集状況や類似物件については、
こちらにお問い合わせください。

京急第10ビル(旧:品川ビル) 外観

外観

  • 京急第10ビル(旧:品川ビル) エントランス写真

    エントランス

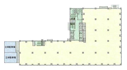
  • 基準階

    基準階

  • 7F

    7F

  • 9F

    9F

内見やお見積りなどの各種お問い合わせ

全物件
仲介手数料無料
仲介から
入居工事まで
ワンストップで対応
経験豊富なスタッフが
スピード感をもって
対応

周辺での似た条件の物件

非公開物件 多数あり!

お問い合わせフォーム