takeofficeなら掲載物件の仲介手数料は無料です

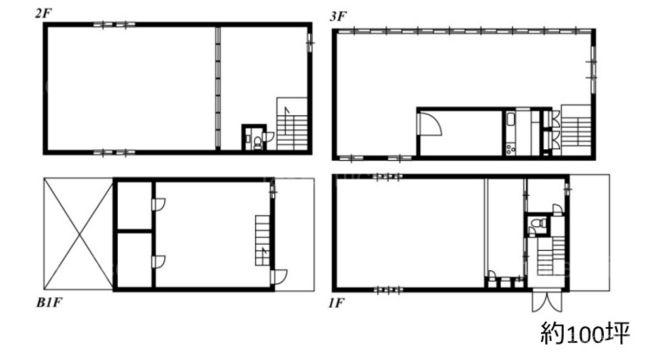
高輪3丁目デザイナーズ一棟貸し(旧:高輪S邸)

住所 東京都港区高輪3-7-16
交通 JR山手線品川」 徒歩8分
都営浅草線高輪台」 徒歩1分
竣工 1998年10月 構造 -
規模 地上3階, 地下1階 耐震基準 -
床構造 - 空調設備 -
天井高 - 基準階面積 --
コンセント容量 - 施工会社

最新の募集状況や類似物件については、
こちらにお問い合わせください。

高輪3丁目デザイナーズ一棟貸し(旧:高輪S邸) 外観

外観

  • NOW PRINTING

    エントランス

内見やお見積りなどの各種お問い合わせ

全物件
仲介手数料無料
仲介から
入居工事まで
ワンストップで対応
経験豊富なスタッフが
スピード感をもって
対応

周辺での似た条件の物件

非公開物件 多数あり!

お問い合わせフォーム