takeofficeなら掲載物件の仲介手数料は無料です

エバーグリーンビル

住所 東京都港区高輪2-15-13
交通 都営浅草線泉岳寺」 徒歩1分
JR山手線品川」 徒歩12分
竣工 2002年02月 構造 SRC
規模 地上7階, 地下1階 耐震基準 新耐震基準
床構造 フリーアクセス 100mm 空調設備 個別空調
天井高 - 基準階面積 --
コンセント容量 - 施工会社

最新の募集状況や類似物件については、
こちらにお問い合わせください。

エバーグリーンビル 外観

外観

  • エバーグリーンビル エントランス写真

    エントランス

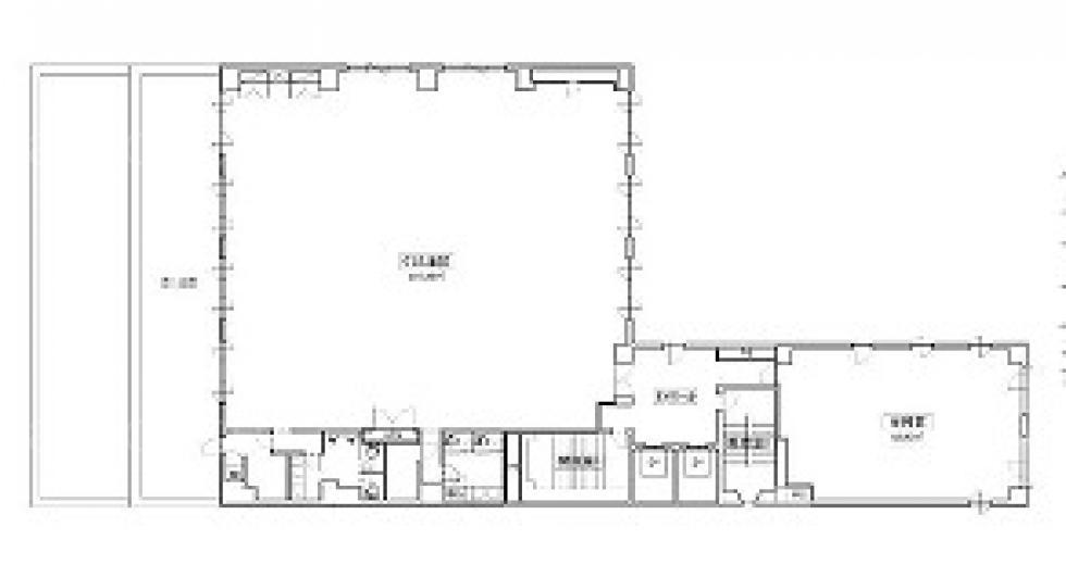
  • 基準階

    基準階

  • 1F

    1F

内見やお見積りなどの各種お問い合わせ

全物件
仲介手数料無料
仲介から
入居工事まで
ワンストップで対応
経験豊富なスタッフが
スピード感をもって
対応

周辺での似た条件の物件

非公開物件 多数あり!

お問い合わせフォーム