takeofficeなら掲載物件の仲介手数料は無料です

ヨドバシ新宿西口駅前ビル

住所 東京都新宿区西新宿1-10-1
交通 JR山手線新宿」 徒歩1分
東京メトロ丸ノ内線新宿」 徒歩1分
京王線新宿」 徒歩1分
竣工 1971年02月 構造 SRC
規模 地上11階, 地下5階 耐震基準 新耐震基準
床構造 フリーアクセス 40mm 空調設備 セントラル+個別
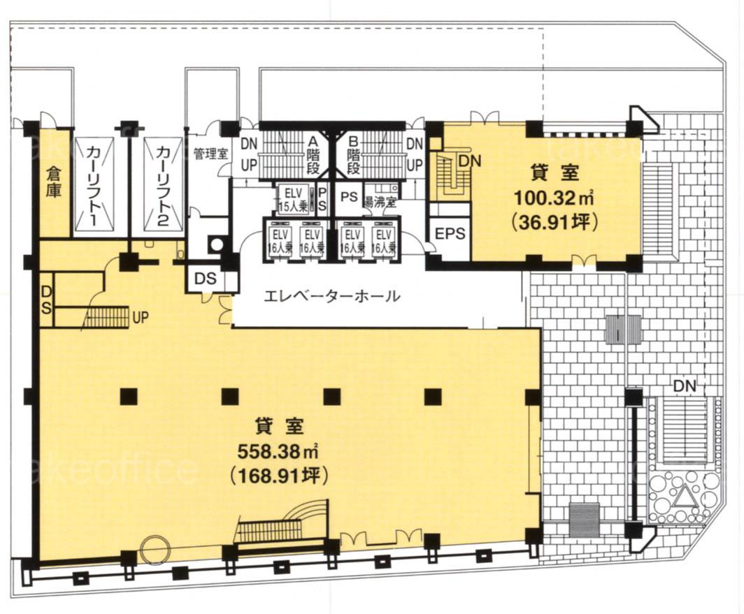
天井高 2550mm 基準階面積 286坪(947m2)
コンセント容量 50VA/m2 施工会社 大成建設・東亜建設工業

最新の募集状況や類似物件については、
こちらにお問い合わせください。

ヨドバシ新宿西口駅前ビル 外観

外観

建物パンフレット

建物パンフレットは作成時点のものであり、また計画段階のものも含まれる為、実際とは異なる場合がございます。

内見やお見積りなどの各種お問い合わせ

全物件
仲介手数料無料
仲介から
入居工事まで
ワンストップで対応
経験豊富なスタッフが
スピード感をもって
対応

周辺での似た条件の物件

非公開物件 多数あり!

お問い合わせフォーム