takeofficeなら掲載物件の仲介手数料は無料です

新宿ファーストウエスト

住所 東京都新宿区西新宿1-23-7
交通 JR山手線新宿」 徒歩5分
東京メトロ丸ノ内線新宿」 徒歩5分
京王線新宿」 徒歩5分
竣工 2003年06月 構造 鉄骨造+SRC
規模 地上18階, 地下2階 耐震基準 新耐震基準
床構造 フリーアクセス 100mm 空調設備 セントラル+個別
天井高 2800mm 基準階面積 546.37坪(1806.18m2)
コンセント容量 60VA/m2 施工会社 大成・大木・前田・五洋・鴻池・工新建設共同企業体

最新の募集状況や類似物件については、
こちらにお問い合わせください。

新宿ファーストウエスト 外観

外観

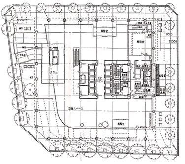
建物パンフレット

建物パンフレットは作成時点のものであり、また計画段階のものも含まれる為、実際とは異なる場合がございます。

内見やお見積りなどの各種お問い合わせ

全物件
仲介手数料無料
仲介から
入居工事まで
ワンストップで対応
経験豊富なスタッフが
スピード感をもって
対応

周辺での似た条件の物件

非公開物件 多数あり!

お問い合わせフォーム