takeofficeなら掲載物件の仲介手数料は無料です

MITSUWAビル

住所 東京都新宿区西新宿3-1-3
交通 JR山手線新宿」 徒歩4分
都営大江戸線都庁前」 徒歩6分
竣工 1998年05月 構造 鉄骨造+RC
規模 地上10階, 地下1階 耐震基準 新耐震基準
床構造 フリーアクセス 空調設備 個別空調
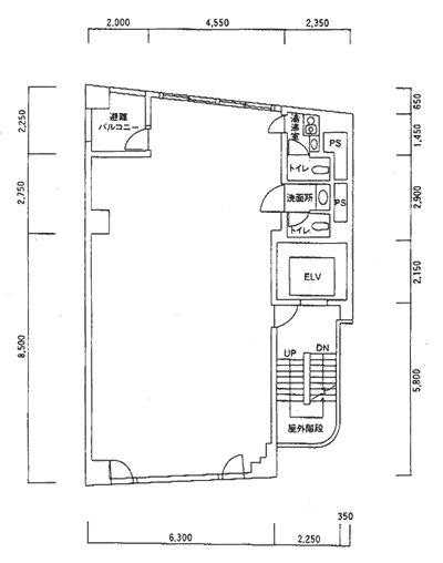
天井高 2450mm 基準階面積 26.48坪(87.54m2)
コンセント容量 - 施工会社 三栄建設

最新の募集状況や類似物件については、
こちらにお問い合わせください。

MITSUWAビル 外観

外観

  • MITSUWAビル エントランス写真

    エントランス

  • 基準階

    基準階

内見やお見積りなどの各種お問い合わせ

全物件
仲介手数料無料
仲介から
入居工事まで
ワンストップで対応
経験豊富なスタッフが
スピード感をもって
対応

周辺での似た条件の物件

非公開物件 多数あり!

お問い合わせフォーム