takeofficeなら掲載物件の仲介手数料は無料です

小野木ビル西新宿

住所 東京都新宿区西新宿5-10-14
交通 都営大江戸線西新宿五丁目」 徒歩3分
都営大江戸線都庁前」 徒歩8分
竣工 1985年03月 構造 -
規模 地上8階, 地下2階 耐震基準 新耐震基準
床構造 - 空調設備 個別空調
天井高 2500mm 基準階面積 --
コンセント容量 - 施工会社

最新の募集状況や類似物件については、
こちらにお問い合わせください。

小野木ビル西新宿 外観

外観

  • NOW PRINTING

    エントランス

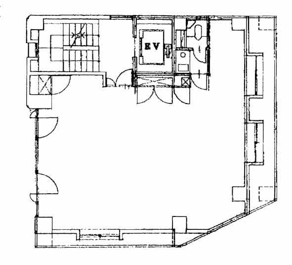
  • 4F

    4F

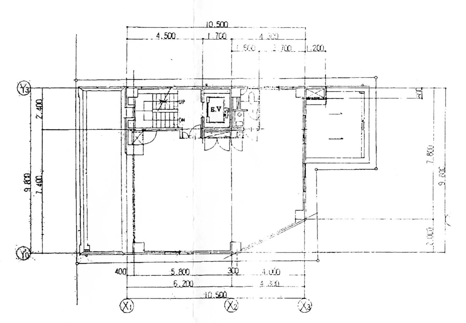
  • 3F

    3F

内見やお見積りなどの各種お問い合わせ

全物件
仲介手数料無料
仲介から
入居工事まで
ワンストップで対応
経験豊富なスタッフが
スピード感をもって
対応

周辺での似た条件の物件

非公開物件 多数あり!

お問い合わせフォーム