takeofficeなら掲載物件の仲介手数料は無料です

新宿アイランドアネックス

住所 東京都新宿区西新宿6-2-3
交通 東京メトロ丸ノ内線西新宿」 徒歩2分
都営大江戸線都庁前」 徒歩3分
JR山手線新宿」 徒歩8分
竣工 1995年01月 構造 RC
規模 地上6階, 地下1階 耐震基準 新耐震基準
床構造 - 空調設備 個別空調
天井高 - 基準階面積 --
コンセント容量 - 施工会社

最新の募集状況や類似物件については、
こちらにお問い合わせください。

新宿アイランドアネックス 外観

外観

  • 新宿アイランドアネックス エントランス写真

    エントランス

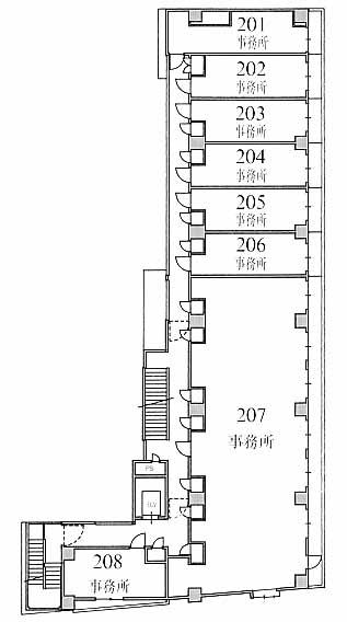
  • 基準階(4~6F)

    基準階(4~6F)

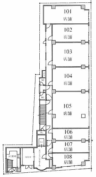
  • 1F

    1F

  • 2F

    2F

  • 3F

    3F

内見やお見積りなどの各種お問い合わせ

全物件
仲介手数料無料
仲介から
入居工事まで
ワンストップで対応
経験豊富なスタッフが
スピード感をもって
対応

周辺での似た条件の物件

非公開物件 多数あり!

お問い合わせフォーム