takeofficeなら掲載物件の仲介手数料は無料です

(仮称)西新宿1丁目地区プロジェクト

住所 東京都新宿区西新宿1-9
交通 JR山手線新宿」 徒歩2分
竣工 2026年06月 構造 SRC+RC
規模 地上23階, 地下4階 耐震基準 新耐震基準
床構造 フリーアクセス 空調設備 ゾーン空調
天井高 - 基準階面積 800坪(2644.63m2)
コンセント容量 - 施工会社

最新の募集状況や類似物件については、
こちらにお問い合わせください。

(仮称)西新宿1丁目地区プロジェクト 外観

外観

  • NOW PRINTING

    エントランス

  • 基準階

    基準階

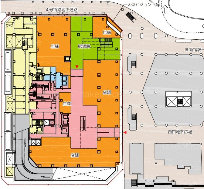
  • 1F

    1F

  • 2F

    2F

  • 23F

    23F

  • B1F

    B1F

  • B2F

    B2F

  • B3F

    B3F

内見やお見積りなどの各種お問い合わせ

全物件
仲介手数料無料
仲介から
入居工事まで
ワンストップで対応
経験豊富なスタッフが
スピード感をもって
対応

※「ご相談」と記載されている項目について
賃貸人が募集賃料条件を守秘義務の関係から明示していない場合に、【ご相談】と記載しております。
フリーレント(賃料免除)期間、使用面積、入居時期、テナント様の与信などによりご提示できる条件が若干変化いたします。
お手数ですが、詳細につきましては、上記よりお問い合わせください。

非公開物件 多数あり!

お問い合わせフォーム