takeofficeなら掲載物件の仲介手数料は無料です

松下産業ビル

住所 東京都新宿区西新宿7-2-12
交通 JR山手線新宿」 徒歩6分
東京メトロ丸ノ内線新宿」 徒歩6分
竣工 1989年04月 構造 SRC
規模 地上7階 耐震基準 新耐震基準
床構造 フリーアクセス 50mm 空調設備 個別空調
天井高 2500mm 基準階面積 68.77坪(227.34m2)
コンセント容量 - 施工会社

最新の募集状況や類似物件については、
こちらにお問い合わせください。

松下産業ビル 外観

外観

  • 松下産業ビル エントランス写真

    エントランス

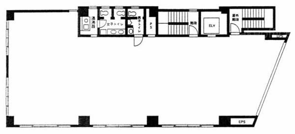
  • 基準階(3~5F)

    基準階(3~5F)

内見やお見積りなどの各種お問い合わせ

全物件
仲介手数料無料
仲介から
入居工事まで
ワンストップで対応
経験豊富なスタッフが
スピード感をもって
対応

周辺での似た条件の物件

非公開物件 多数あり!

お問い合わせフォーム