takeofficeなら掲載物件の仲介手数料は無料です

三光パークビル

住所 東京都新宿区西新宿7-3-1
交通 JR山手線新宿」 徒歩5分
東京メトロ丸ノ内線新宿」 徒歩5分
小田急線新宿」 徒歩5分
竣工 1986年03月 構造 RC
規模 地上5階 耐震基準 新耐震基準
床構造 フリーアクセス 50mm 空調設備 個別空調
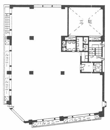
天井高 2450mm 基準階面積 107坪(353.72m2)
コンセント容量 - 施工会社

最新の募集状況や類似物件については、
こちらにお問い合わせください。

三光パークビル 外観

外観

内見やお見積りなどの各種お問い合わせ

全物件
仲介手数料無料
仲介から
入居工事まで
ワンストップで対応
経験豊富なスタッフが
スピード感をもって
対応

周辺での似た条件の物件

非公開物件 多数あり!

お問い合わせフォーム