takeofficeなら掲載物件の仲介手数料は無料です

GOWA西新宿ビル

住所 東京都新宿区西新宿7-5-8
交通 都営大江戸線2新宿西口」 徒歩2分
JR総武本線大久保」 徒歩6分
JR山手線新宿」 徒歩7分
竣工 1993年05月 構造 鉄骨造
規模 地上10階, 地下0階 耐震基準 新耐震基準
床構造 フリーアクセス 空調設備 個別空調
天井高 2450mm 基準階面積 41.37坪(136.76m2)
コンセント容量 - 施工会社

最新の募集状況や類似物件については、
こちらにお問い合わせください。

GOWA西新宿ビル 外観

外観

  • GOWA西新宿ビル エントランス写真

    エントランス

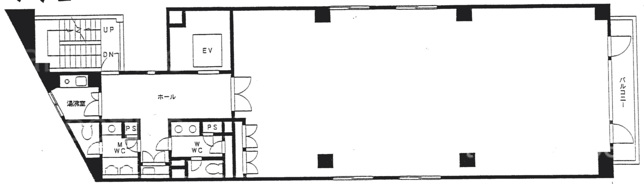
  • 基準階

    基準階

内見やお見積りなどの各種お問い合わせ

全物件
仲介手数料無料
仲介から
入居工事まで
ワンストップで対応
経験豊富なスタッフが
スピード感をもって
対応

周辺での似た条件の物件

非公開物件 多数あり!

お問い合わせフォーム