takeofficeなら掲載物件の仲介手数料は無料です

岡山ビル

住所 東京都新宿区西新宿7-5-11
交通 JR山手線新宿」 徒歩7分
都営大江戸線新宿西口」 徒歩3分
西武新宿線西武新宿」 徒歩3分
竣工 1969年 月 構造 SRC
規模 地上9階, 地下1階 耐震基準 旧耐震基準
床構造 - 空調設備 個別空調
天井高 2600mm 基準階面積 38坪(125m2)
コンセント容量 - 施工会社

最新の募集状況や類似物件については、
こちらにお問い合わせください。

岡山ビル 外観

外観

  • 岡山ビル エントランス写真

    エントランス

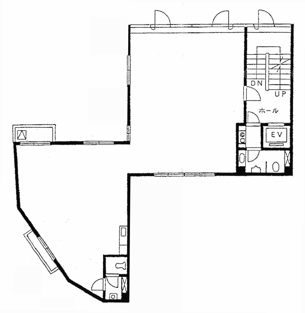
  • 基準階(2~7F)

    基準階(2~7F)

内見やお見積りなどの各種お問い合わせ

全物件
仲介手数料無料
仲介から
入居工事まで
ワンストップで対応
経験豊富なスタッフが
スピード感をもって
対応

周辺での似た条件の物件

非公開物件 多数あり!

お問い合わせフォーム