takeofficeなら掲載物件の仲介手数料は無料です

トーワ西新宿ビル

住所 東京都新宿区西新宿7-7-6
交通 JR総武本線大久保」 徒歩5分
都営大江戸線新宿西口」 徒歩5分
竣工 1987年10月 構造 SRC
規模 地上4階 耐震基準 新耐震基準
床構造 3WAY 空調設備 個別空調
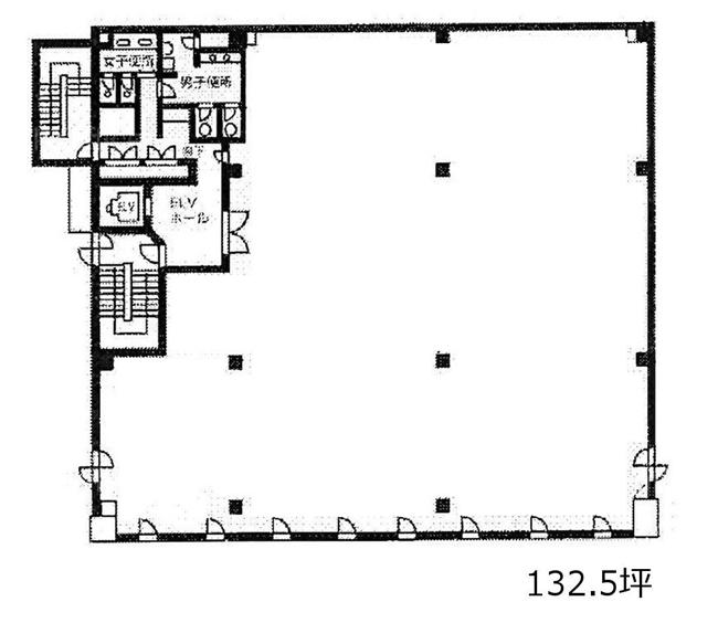
天井高 2700mm 基準階面積 132.58坪(438.28m2)
コンセント容量 - 施工会社

最新の募集状況や類似物件については、
こちらにお問い合わせください。

トーワ西新宿ビル 外観

外観

内見やお見積りなどの各種お問い合わせ

全物件
仲介手数料無料
仲介から
入居工事まで
ワンストップで対応
経験豊富なスタッフが
スピード感をもって
対応

周辺での似た条件の物件

非公開物件 多数あり!

お問い合わせフォーム