takeofficeなら掲載物件の仲介手数料は無料です

新宿ヴィンテージビル

住所 東京都新宿区西新宿7-8-6
交通 JR山手線新宿」 徒歩7分
都営大江戸線新宿西口」 徒歩3分
JR総武本線大久保」 徒歩6分
竣工 1968年 構造 RC
規模 地上6階, 地下1階 耐震基準 旧耐震基準
床構造 - 空調設備 個別空調
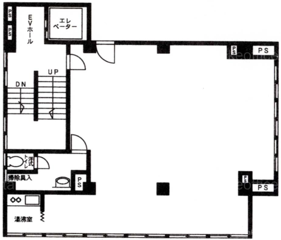
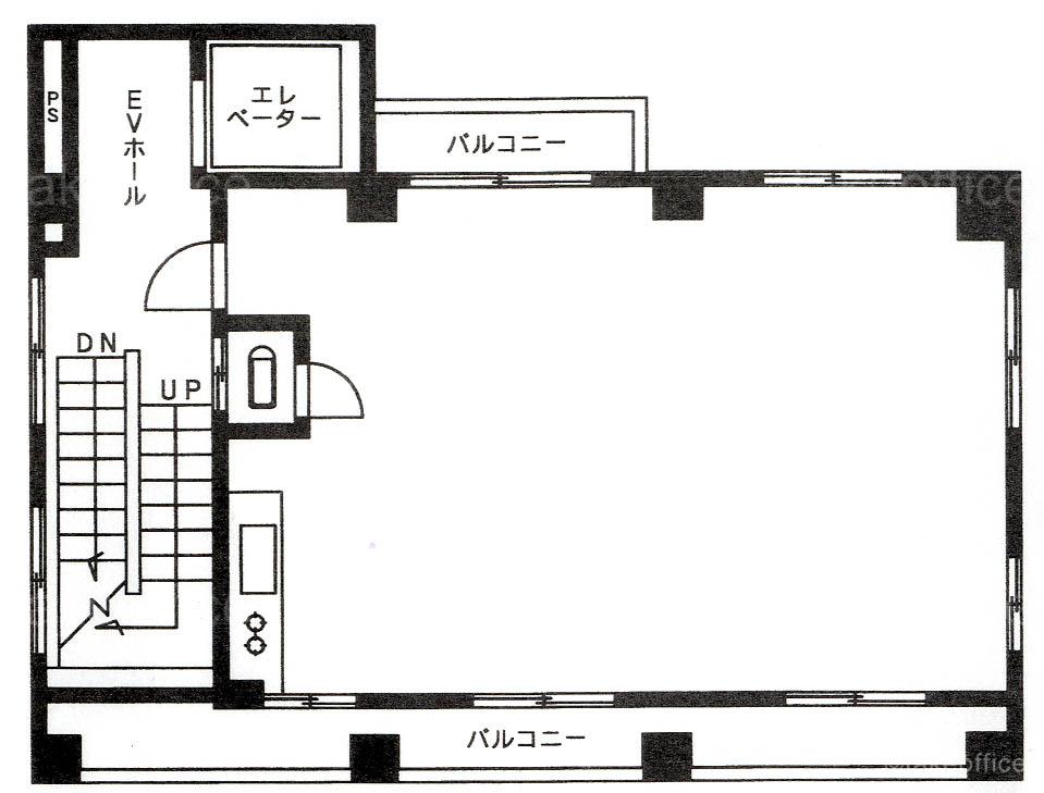
天井高 - 基準階面積 22.99坪(76m2)
コンセント容量 - 施工会社

最新の募集状況や類似物件については、
こちらにお問い合わせください。

新宿ヴィンテージビル 外観

外観

内見やお見積りなどの各種お問い合わせ

全物件
仲介手数料無料
仲介から
入居工事まで
ワンストップで対応
経験豊富なスタッフが
スピード感をもって
対応

周辺での似た条件の物件

非公開物件 多数あり!

お問い合わせフォーム