takeofficeなら掲載物件の仲介手数料は無料です

島田ビル

住所 東京都新宿区西新宿7-18-10
交通 JR山手線新宿」 徒歩7分
東京メトロ丸ノ内線西新宿」 徒歩4分
竣工 1984年11月 構造 RC
規模 地上5階 耐震基準 新耐震基準
床構造 - 空調設備 個別空調
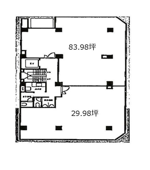
天井高 - 基準階面積 54坪(178m2)
コンセント容量 - 施工会社

最新の募集状況や類似物件については、
こちらにお問い合わせください。

島田ビル 外観

外観

  • 島田ビル エントランス写真

    エントランス

内見やお見積りなどの各種お問い合わせ

全物件
仲介手数料無料
仲介から
入居工事まで
ワンストップで対応
経験豊富なスタッフが
スピード感をもって
対応

周辺での似た条件の物件

非公開物件 多数あり!

お問い合わせフォーム