takeofficeなら掲載物件の仲介手数料は無料です

アドバンスビル

住所 東京都新宿区西新宿8-1-16
交通 JR山手線新宿」 徒歩8分
東京メトロ丸ノ内線西新宿」 徒歩2分
竣工 1992年04月 構造 RC
規模 地上4階, 地下0階 耐震基準 新耐震基準
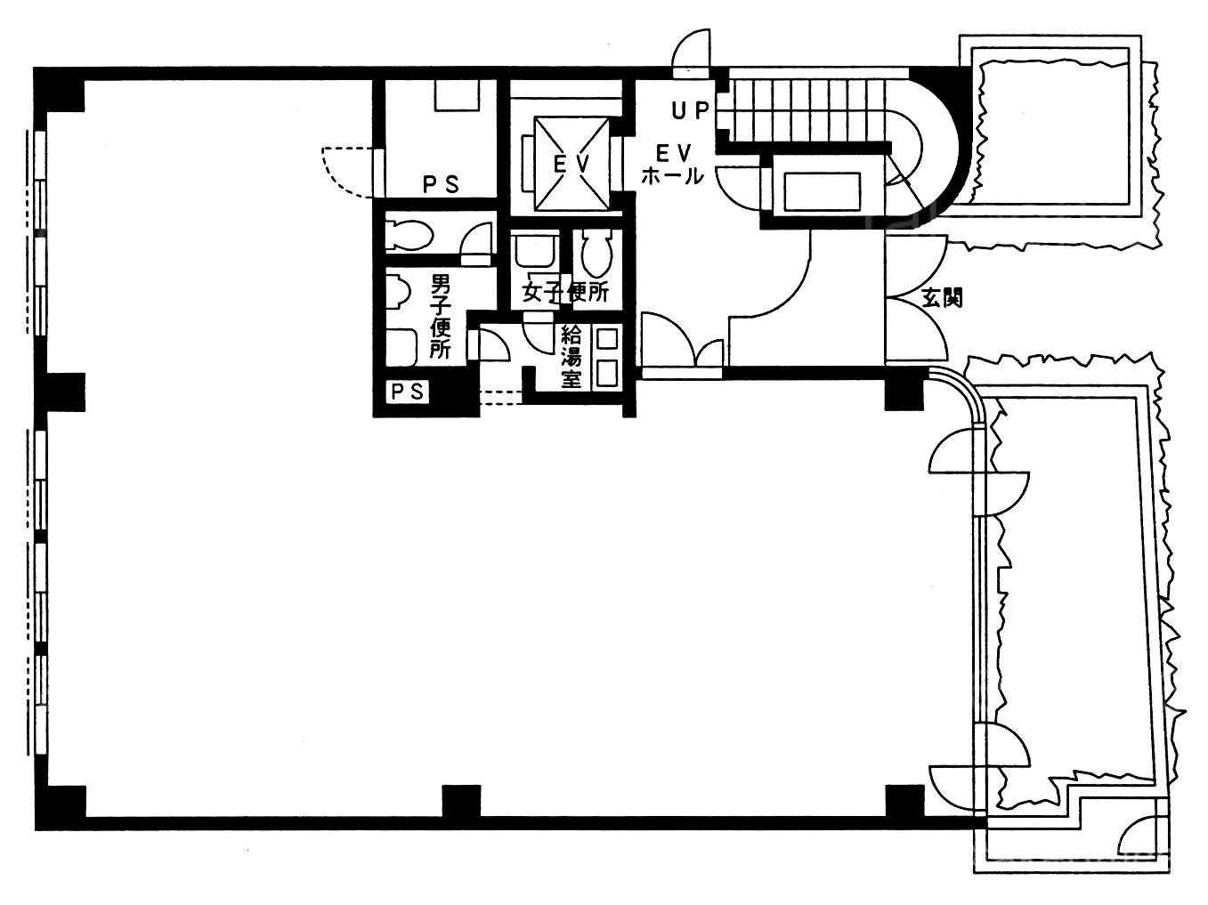
床構造 フリーアクセス 空調設備 個別空調
天井高 2500mm 基準階面積 44.96坪(148.63m2)
コンセント容量 - 施工会社

最新の募集状況や類似物件については、
こちらにお問い合わせください。

アドバンスビル 外観

外観

  • NOW PRINTING

    エントランス

  • 基準階

    基準階

  • 1F

    1F

内見やお見積りなどの各種お問い合わせ

全物件
仲介手数料無料
仲介から
入居工事まで
ワンストップで対応
経験豊富なスタッフが
スピード感をもって
対応

周辺での似た条件の物件

非公開物件 多数あり!

お問い合わせフォーム