takeofficeなら掲載物件の仲介手数料は無料です

エトワールビル北新宿

住所 東京都新宿区北新宿1-12-11
交通 JR総武本線大久保」 徒歩4分
JR山手線新大久保」 徒歩8分
東京メトロ丸ノ内線西新宿」 徒歩12分
竣工 1990年12月 構造 SRC
規模 地上6階, 地下1階 耐震基準 新耐震基準
床構造 - 空調設備 -
天井高 - 基準階面積 --
コンセント容量 - 施工会社

最新の募集状況や類似物件については、
こちらにお問い合わせください。

エトワールビル北新宿 外観

外観

  • エトワールビル北新宿 エントランス写真

    エントランス

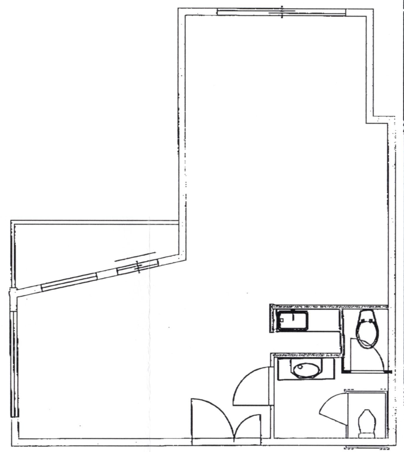
  • 基準階

    基準階

内見やお見積りなどの各種お問い合わせ

全物件
仲介手数料無料
仲介から
入居工事まで
ワンストップで対応
経験豊富なスタッフが
スピード感をもって
対応

周辺での似た条件の物件

非公開物件 多数あり!

お問い合わせフォーム