takeofficeなら掲載物件の仲介手数料は無料です

クレール新宿

住所 東京都新宿区百人町1-16-16
交通 JR山手線新大久保」 徒歩3分
JR総武本線大久保」 徒歩4分
西武新宿線西武新宿」 徒歩11分
竣工 1997年11月 構造 SRC
規模 地上9階, 地下0階 耐震基準 新耐震基準
床構造 - 空調設備 個別空調
天井高 - 基準階面積 --
コンセント容量 - 施工会社

最新の募集状況や類似物件については、
こちらにお問い合わせください。

クレール新宿 外観

外観

  • クレール新宿 エントランス写真

    エントランス

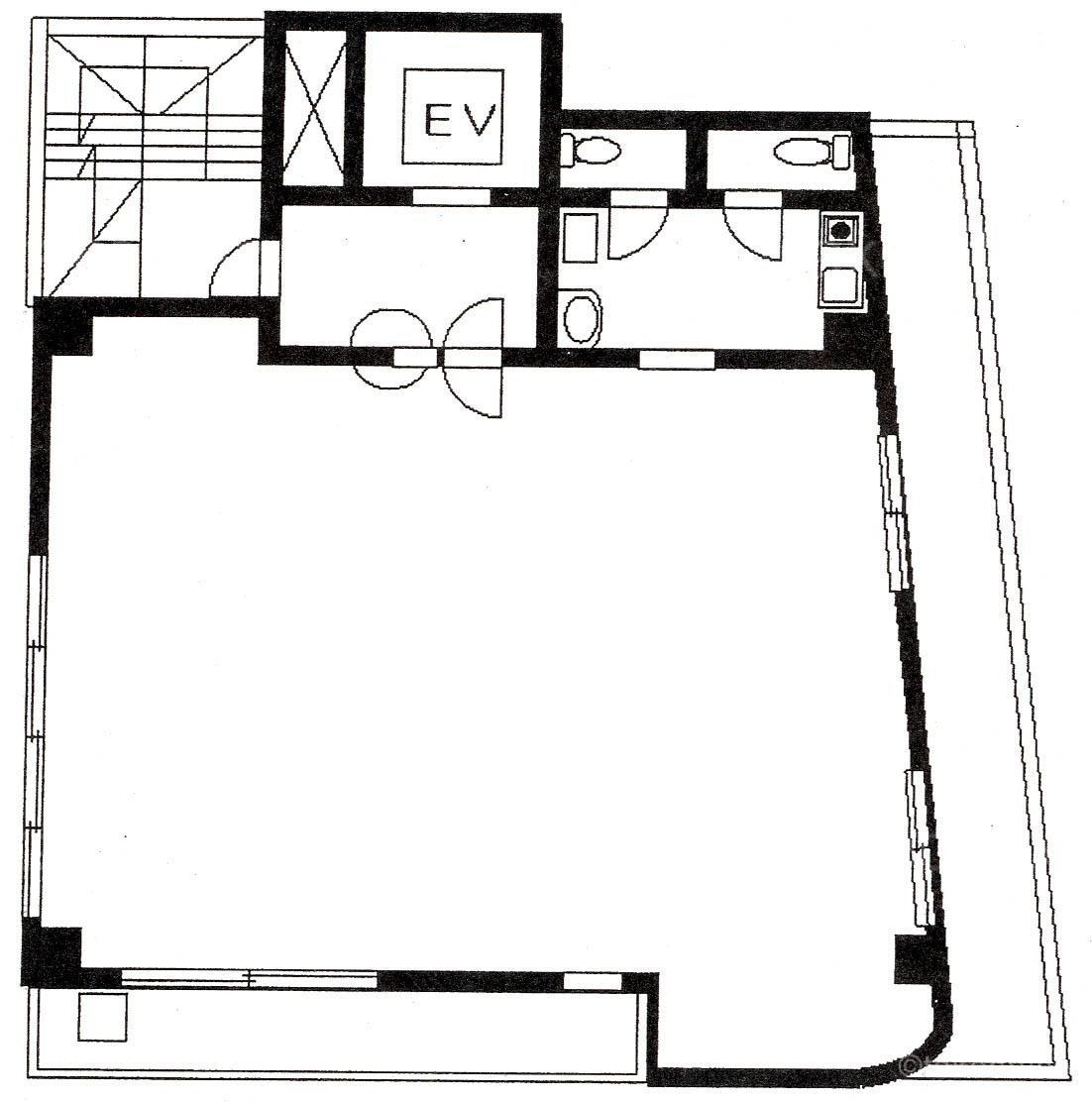
  • 5F

    5F

内見やお見積りなどの各種お問い合わせ

全物件
仲介手数料無料
仲介から
入居工事まで
ワンストップで対応
経験豊富なスタッフが
スピード感をもって
対応

周辺での似た条件の物件

非公開物件 多数あり!

お問い合わせフォーム