takeofficeなら掲載物件の仲介手数料は無料です

ステアーズビル

住所 東京都新宿区百人町2-4-8
交通 JR山手線新大久保」 徒歩1分
JR総武本線大久保」 徒歩4分
西武新宿線西武新宿」 徒歩9分
竣工 1988年 構造 SRC
規模 地上9階 耐震基準 新耐震基準
床構造 フリーアクセス 空調設備 個別空調
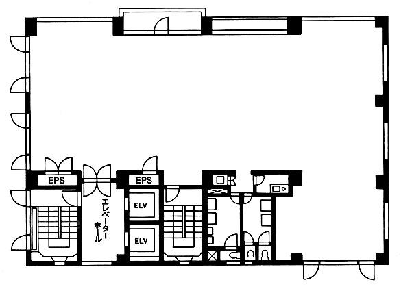
天井高 - 基準階面積 114.81坪(379.54m2)
コンセント容量 - 施工会社

最新の募集状況や類似物件については、
こちらにお問い合わせください。

ステアーズビル 外観

外観

内見やお見積りなどの各種お問い合わせ

全物件
仲介手数料無料
仲介から
入居工事まで
ワンストップで対応
経験豊富なスタッフが
スピード感をもって
対応

周辺での似た条件の物件

非公開物件 多数あり!

お問い合わせフォーム