takeofficeなら掲載物件の仲介手数料は無料です

第3長束ビル

住所 東京都新宿区下落合1-3-20
交通 JR山手線高田馬場」 徒歩5分
西武新宿線高田馬場」 徒歩5分
東京メトロ東西線高田馬場」 徒歩5分
竣工 1989年03月 構造 RC
規模 地上4階, 地下1階 耐震基準 新耐震基準
床構造 - 空調設備 個別空調
天井高 - 基準階面積 --
コンセント容量 - 施工会社

最新の募集状況や類似物件については、
こちらにお問い合わせください。

NOW PRINTING

外観

  • NOW PRINTING

    エントランス

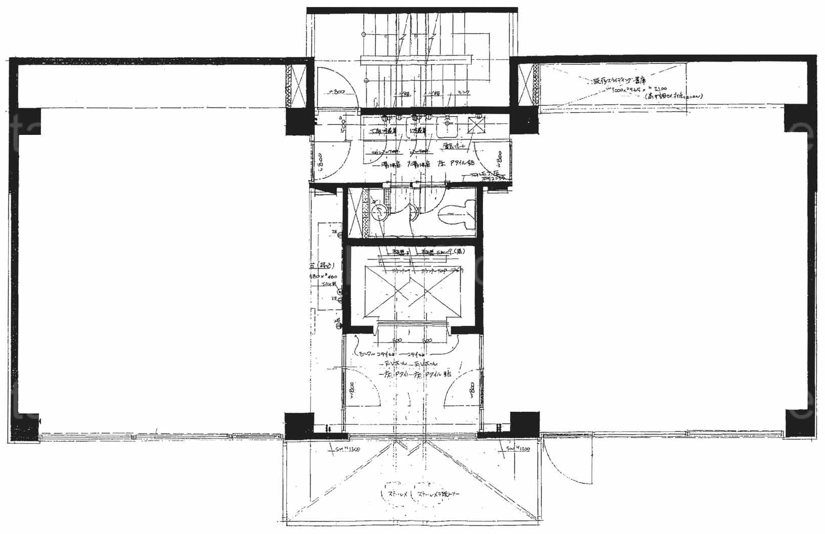
  • 2F

    2F

  • 1F

    1F

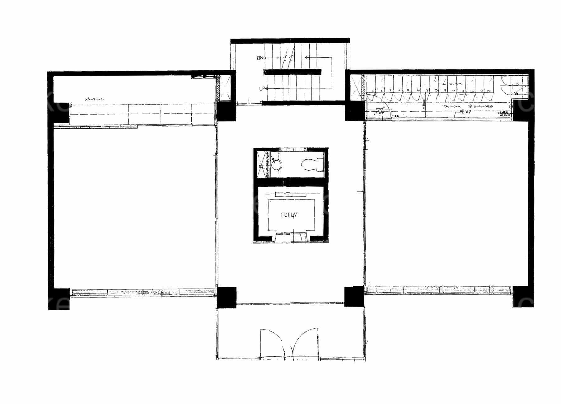
  • 3F

    3F

  • 4F

    4F

  • B1F

    B1F

内見やお見積りなどの各種お問い合わせ

全物件
仲介手数料無料
仲介から
入居工事まで
ワンストップで対応
経験豊富なスタッフが
スピード感をもって
対応

周辺での似た条件の物件

非公開物件 多数あり!

お問い合わせフォーム