takeofficeなら掲載物件の仲介手数料は無料です

セントエルモ西早稲田

住所 東京都新宿区高田馬場1-1-13
交通 JR山手線高田馬場」 徒歩8分
都電荒川線面影橋」 徒歩11分
都電荒川線学習院下」 徒歩12分
竣工 1985年03月 構造 SRC
規模 地上13階, 地下1階 耐震基準 新耐震基準
床構造 - 空調設備 個別空調
天井高 - 基準階面積 --
コンセント容量 - 施工会社

最新の募集状況や類似物件については、
こちらにお問い合わせください。

セントエルモ西早稲田 外観

外観

  • NOW PRINTING

    エントランス

  • 基準階(6~11F)

    基準階(6~11F)

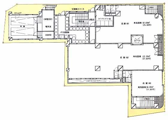
  • 1F

    1F

  • 2F

    2F

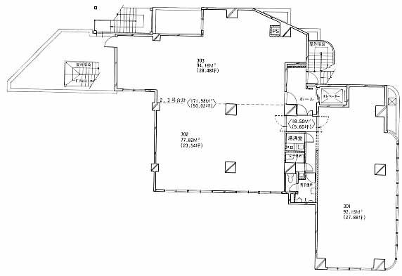
  • 3F

    3F

  • 4F

    4F

  • 5F

    5F

  • 12F

    12F

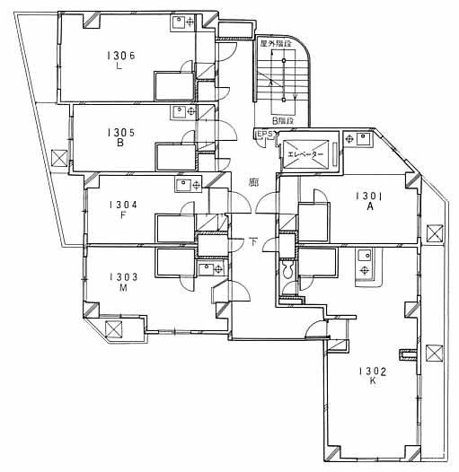
  • 13F

    13F

内見やお見積りなどの各種お問い合わせ

全物件
仲介手数料無料
仲介から
入居工事まで
ワンストップで対応
経験豊富なスタッフが
スピード感をもって
対応

周辺での似た条件の物件

非公開物件 多数あり!

お問い合わせフォーム