takeofficeなら掲載物件の仲介手数料は無料です

タイオーインターナショナルビルディング

住所 東京都新宿区高田馬場1-25-36
交通 東京メトロ東西線高田馬場」 徒歩1分
JR山手線高田馬場」 徒歩3分
竣工 1990年07月 構造 RC
規模 地上4階, 地下0階 耐震基準 新耐震基準
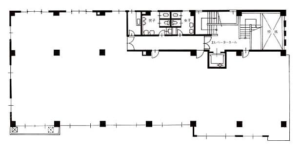
床構造 フリーアクセス 50mm 空調設備 個別空調
天井高 2450mm 基準階面積 123坪(408m2)
コンセント容量 - 施工会社

最新の募集状況や類似物件については、
こちらにお問い合わせください。

タイオーインターナショナルビルディング 外観

外観

内見やお見積りなどの各種お問い合わせ

全物件
仲介手数料無料
仲介から
入居工事まで
ワンストップで対応
経験豊富なスタッフが
スピード感をもって
対応

周辺での似た条件の物件

非公開物件 多数あり!

お問い合わせフォーム