takeofficeなら掲載物件の仲介手数料は無料です

いちご高田馬場ビル

住所 東京都新宿区高田馬場1-29-8
交通 JR山手線高田馬場」 徒歩3分
東京メトロ東西線高田馬場」 徒歩3分
西武新宿線高田馬場」 徒歩3分
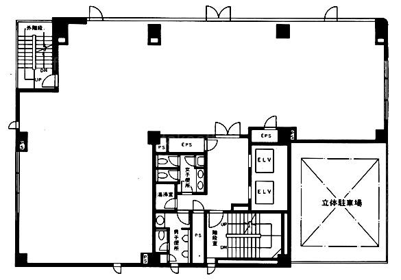
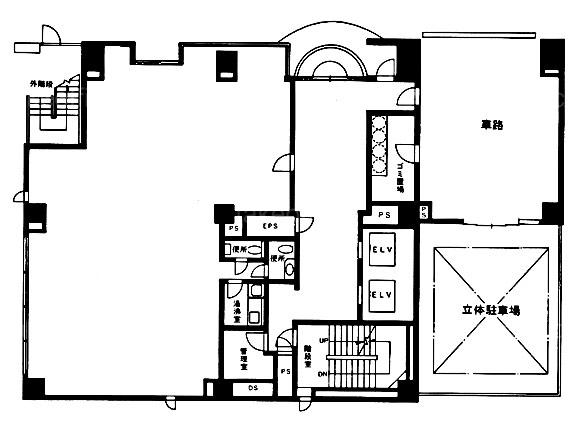
竣工 1993年10月 構造 SRC+RC
規模 地上7階, 地下1階 耐震基準 新耐震基準
床構造 フリーアクセス 60mm 空調設備 個別空調
天井高 2550mm 基準階面積 75.43坪(249.36m2)
コンセント容量 35VA/m2 施工会社

最新の募集状況や類似物件については、
こちらにお問い合わせください。

いちご高田馬場ビル 外観

外観

内見やお見積りなどの各種お問い合わせ

全物件
仲介手数料無料
仲介から
入居工事まで
ワンストップで対応
経験豊富なスタッフが
スピード感をもって
対応

周辺での似た条件の物件

非公開物件 多数あり!

お問い合わせフォーム