takeofficeなら掲載物件の仲介手数料は無料です

アティレビル

住所 東京都新宿区高田馬場2-14-9
交通 JR山手線高田馬場」 徒歩1分
東京メトロ東西線高田馬場」 徒歩1分
竣工 2009年09月 構造 鉄骨造
規模 地上6階, 地下0階 耐震基準 新耐震基準
床構造 フリーアクセス 空調設備 個別空調
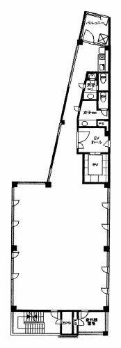
天井高 - 基準階面積 37.43坪(123.74m2)
コンセント容量 - 施工会社

最新の募集状況や類似物件については、
こちらにお問い合わせください。

アティレビル 外観

外観

内見やお見積りなどの各種お問い合わせ

全物件
仲介手数料無料
仲介から
入居工事まで
ワンストップで対応
経験豊富なスタッフが
スピード感をもって
対応

周辺での似た条件の物件

非公開物件 多数あり!

お問い合わせフォーム