takeofficeなら掲載物件の仲介手数料は無料です

NIAビル

住所 東京都新宿区高田馬場3-3-3
交通 JR山手線高田馬場」 徒歩3分
都電荒川線学習院下」 徒歩11分
竣工 1988年07月 構造 RC
規模 地上8階 耐震基準 新耐震基準
床構造 フリーアクセス 空調設備 個別空調
天井高 2500mm 基準階面積 95.99坪(317.32m2)
コンセント容量 - 施工会社

最新の募集状況や類似物件については、
こちらにお問い合わせください。

NIAビル 外観

外観

  • NOW PRINTING

    エントランス

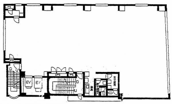
  • 基準階(3~6F)

    基準階(3~6F)

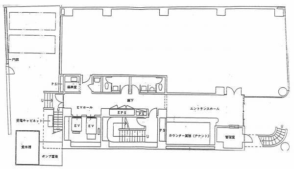
  • 1F

    1F

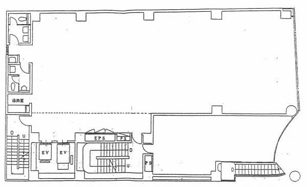
  • 2F

    2F

内見やお見積りなどの各種お問い合わせ

全物件
仲介手数料無料
仲介から
入居工事まで
ワンストップで対応
経験豊富なスタッフが
スピード感をもって
対応

周辺での似た条件の物件

非公開物件 多数あり!

お問い合わせフォーム