takeofficeなら掲載物件の仲介手数料は無料です

第5康洋ビル

住所 東京都新宿区高田馬場3-18-25
交通 西武新宿線下落合」 徒歩3分
JR山手線高田馬場」 徒歩10分
東京メトロ東西線高田馬場」 徒歩10分
竣工 1987年05月 構造 RC
規模 地上4階 耐震基準 新耐震基準
床構造 - 空調設備 -
天井高 - 基準階面積 26.5坪(87.6m2)
コンセント容量 - 施工会社

最新の募集状況や類似物件については、
こちらにお問い合わせください。

第5康洋ビル 外観

外観

  • NOW PRINTING

    エントランス

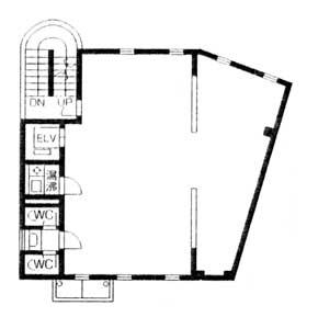
  • 2F

    2F

内見やお見積りなどの各種お問い合わせ

全物件
仲介手数料無料
仲介から
入居工事まで
ワンストップで対応
経験豊富なスタッフが
スピード感をもって
対応

周辺での似た条件の物件

非公開物件 多数あり!

お問い合わせフォーム