takeofficeなら掲載物件の仲介手数料は無料です

YSKビル

住所 東京都新宿区高田馬場3-23-1
交通 JR山手線高田馬場」 徒歩5分
東京メトロ東西線高田馬場」 徒歩5分
竣工 1998年09月 構造 SRC
規模 地上6階, 地下1階 耐震基準 新耐震基準
床構造 フリーアクセス 70mm 空調設備 個別空調
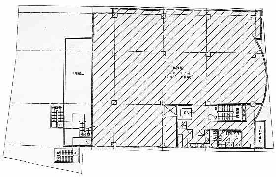
天井高 2600mm 基準階面積 233.46坪(771.77m2)
コンセント容量 - 施工会社

最新の募集状況や類似物件については、
こちらにお問い合わせください。

YSKビル 外観

外観

  • NOW PRINTING

    エントランス

  • 基準階

    基準階

  • 1F

    1F

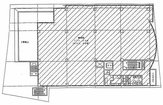
  • 2F

    2F

  • 3F

    3F

内見やお見積りなどの各種お問い合わせ

全物件
仲介手数料無料
仲介から
入居工事まで
ワンストップで対応
経験豊富なスタッフが
スピード感をもって
対応

周辺での似た条件の物件

非公開物件 多数あり!

お問い合わせフォーム