takeofficeなら掲載物件の仲介手数料は無料です

AD高田馬場

住所 東京都新宿区高田馬場3-35-2
交通 東京メトロ東西線高田馬場」 徒歩8分
東京メトロ東西線高田馬場」 徒歩9分
西武新宿線高田馬場」 徒歩9分
竣工 1992年03月 構造 SRC
規模 地上7階, 地下2階 耐震基準 新耐震基準
床構造 - 空調設備 個別空調
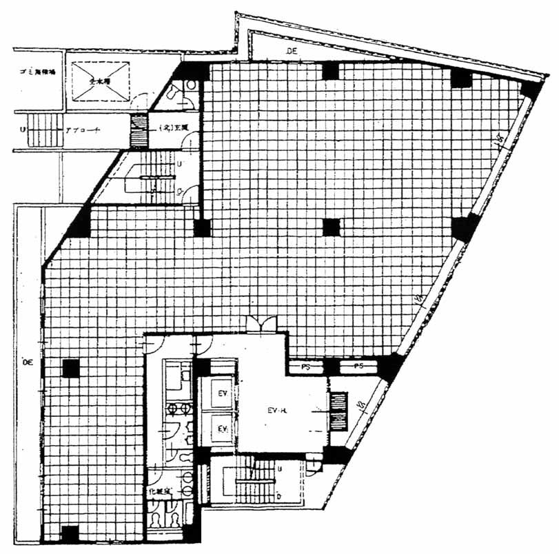
天井高 - 基準階面積 230坪(760m2)
コンセント容量 - 施工会社

最新の募集状況や類似物件については、
こちらにお問い合わせください。

AD高田馬場 外観

外観

  • NOW PRINTING

    エントランス

  • 基準階(4~5F)

    基準階(4~5F)

  • 1F

    1F

  • 2F

    2F

  • 3F

    3F

  • 6~7F

    6~7F

内見やお見積りなどの各種お問い合わせ

全物件
仲介手数料無料
仲介から
入居工事まで
ワンストップで対応
経験豊富なスタッフが
スピード感をもって
対応

周辺での似た条件の物件

非公開物件 多数あり!

お問い合わせフォーム