takeofficeなら掲載物件の仲介手数料は無料です

早稲田13時ホール

住所 東京都新宿区高田馬場4-9-9
交通 JR山手線高田馬場」 徒歩3分
東京メトロ東西線高田馬場」 徒歩3分
西武新宿線高田馬場」 徒歩3分
竣工 1975年05月 構造 SRC
規模 地上7階, 地下0階 耐震基準 旧耐震基準
床構造 - 空調設備 個別空調
天井高 - 基準階面積 --
コンセント容量 - 施工会社

最新の募集状況や類似物件については、
こちらにお問い合わせください。

早稲田13時ホール 外観

外観

  • 早稲田13時ホール エントランス写真

    エントランス

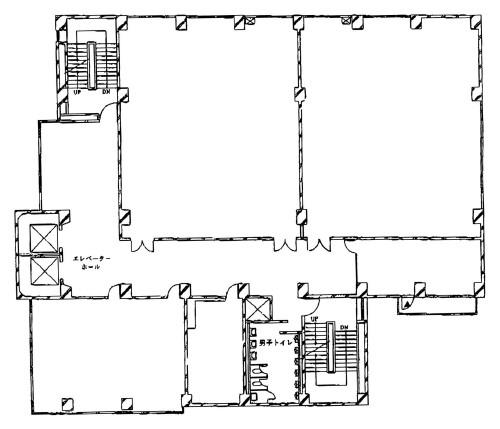
  • 基準階

    基準階

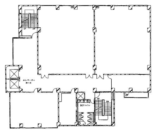
  • 4F

    4F

内見やお見積りなどの各種お問い合わせ

全物件
仲介手数料無料
仲介から
入居工事まで
ワンストップで対応
経験豊富なスタッフが
スピード感をもって
対応

周辺での似た条件の物件

非公開物件 多数あり!

お問い合わせフォーム