takeofficeなら掲載物件の仲介手数料は無料です

高田馬場マリンビル

住所 東京都新宿区高田馬場1-32-13
交通 JR山手線高田馬場」 徒歩2分
東京メトロ東西線高田馬場」 徒歩5分
西武新宿線高田馬場」 徒歩5分
竣工 2008年04月 構造 鉄骨造
規模 地上7階, 地下1階 耐震基準 -
床構造 フリーアクセス 空調設備 個別空調
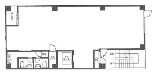
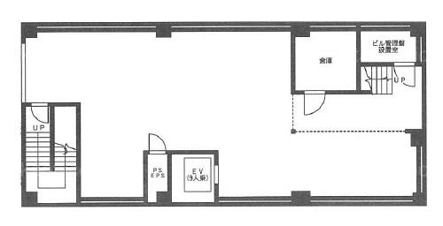
天井高 2700mm 基準階面積 37.79坪(124.93m2)
コンセント容量 - 施工会社

最新の募集状況や類似物件については、
こちらにお問い合わせください。

高田馬場マリンビル 外観

外観

内見やお見積りなどの各種お問い合わせ

全物件
仲介手数料無料
仲介から
入居工事まで
ワンストップで対応
経験豊富なスタッフが
スピード感をもって
対応

周辺での似た条件の物件

非公開物件 多数あり!

お問い合わせフォーム