takeofficeなら掲載物件の仲介手数料は無料です

大久保フジビル

住所 東京都新宿区大久保2-7-1
交通 都営大江戸線東新宿」 徒歩4分
JR山手線新大久保」 徒歩9分
竣工 1975年04月 構造 SRC
規模 地上10階 耐震基準 旧耐震基準
床構造 - 空調設備 個別空調
天井高 - 基準階面積 164坪(544m2)
コンセント容量 - 施工会社

最新の募集状況や類似物件については、
こちらにお問い合わせください。

大久保フジビル 外観

外観

  • 大久保フジビル エントランス写真

    エントランス

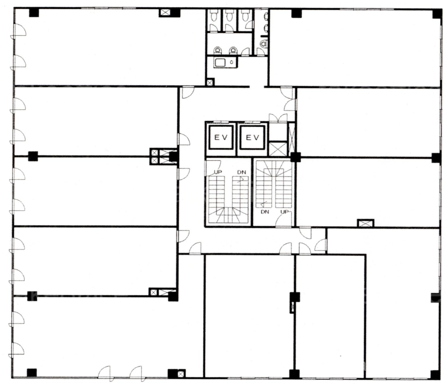
  • 基準階

    基準階

内見やお見積りなどの各種お問い合わせ

全物件
仲介手数料無料
仲介から
入居工事まで
ワンストップで対応
経験豊富なスタッフが
スピード感をもって
対応

周辺での似た条件の物件

非公開物件 多数あり!

お問い合わせフォーム