takeofficeなら掲載物件の仲介手数料は無料です

晴和ビル

住所 東京都新宿区大久保2-7-17
交通 都営大江戸線東新宿」 徒歩5分
JR山手線新大久保」 徒歩8分
竣工 1988年01月 構造 RC
規模 地上4階 耐震基準 新耐震基準
床構造 フリーアクセス 70mm 空調設備 個別空調
天井高 2600mm 基準階面積 143.6坪(474.71m2)
コンセント容量 - 施工会社

最新の募集状況や類似物件については、
こちらにお問い合わせください。

晴和ビル 外観

外観

  • 晴和ビル エントランス写真

    エントランス

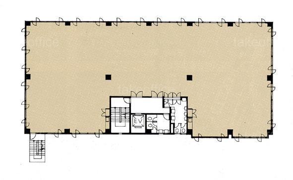
  • 基準階(2~3F)

    基準階(2~3F)

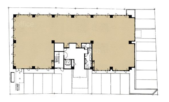
  • 1F

    1F

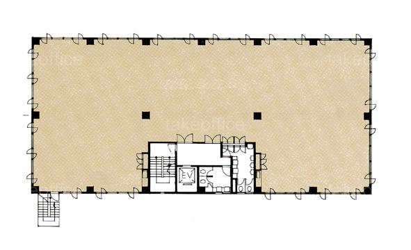
  • 4F

    4F

内見やお見積りなどの各種お問い合わせ

全物件
仲介手数料無料
仲介から
入居工事まで
ワンストップで対応
経験豊富なスタッフが
スピード感をもって
対応

周辺での似た条件の物件

非公開物件 多数あり!

お問い合わせフォーム