takeofficeなら掲載物件の仲介手数料は無料です

東新宿ASKビル

住所 東京都新宿区歌舞伎町2-19-13
交通 都営大江戸線東新宿」 徒歩2分
西武新宿線西武新宿」 徒歩5分
JR山手線新宿」 徒歩10分
竣工 1977年12月 構造 SRC
規模 地上9階 耐震基準 旧耐震基準
床構造 - 空調設備 個別空調
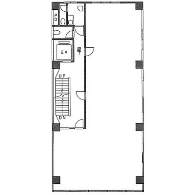
天井高 2400mm 基準階面積 43坪(142.15m2)
コンセント容量 - 施工会社

最新の募集状況や類似物件については、
こちらにお問い合わせください。

東新宿ASKビル 外観

外観

  • NOW PRINTING

    エントランス

内見やお見積りなどの各種お問い合わせ

全物件
仲介手数料無料
仲介から
入居工事まで
ワンストップで対応
経験豊富なスタッフが
スピード感をもって
対応

周辺での似た条件の物件

非公開物件 多数あり!

お問い合わせフォーム