takeofficeなら掲載物件の仲介手数料は無料です

植木ビル

住所 東京都新宿区歌舞伎町2-41-8
交通 西武新宿線西武新宿」 徒歩6分
都営大江戸線東新宿」 徒歩6分
竣工 1974年07月 構造 SRC
規模 地上10階, 地下1階 耐震基準 旧耐震基準
床構造 - 空調設備 -
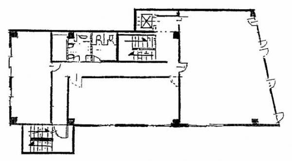
天井高 - 基準階面積 36坪(119m2)
コンセント容量 - 施工会社

最新の募集状況や類似物件については、
こちらにお問い合わせください。

植木ビル 外観

外観

  • 植木ビル エントランス写真

    エントランス

  • 4~5F

    4~5F

  • 9F

    9F

内見やお見積りなどの各種お問い合わせ

全物件
仲介手数料無料
仲介から
入居工事まで
ワンストップで対応
経験豊富なスタッフが
スピード感をもって
対応

周辺での似た条件の物件

非公開物件 多数あり!

お問い合わせフォーム