takeofficeなら掲載物件の仲介手数料は無料です

シブヤビル

住所 東京都新宿区新宿1-13-11
交通 東京メトロ丸ノ内線新宿御苑前」 徒歩1分
東京メトロ丸ノ内線新宿三丁目」 徒歩8分
竣工 1989年04月 構造 SRC
規模 地上7階, 地下2階 耐震基準 新耐震基準
床構造 - 空調設備 個別空調
天井高 - 基準階面積 33坪(111m2)
コンセント容量 - 施工会社

最新の募集状況や類似物件については、
こちらにお問い合わせください。

シブヤビル 外観

外観

  • NOW PRINTING

    エントランス

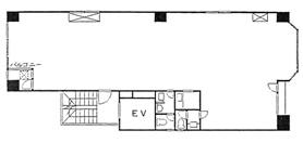
  • 基準階

    基準階

内見やお見積りなどの各種お問い合わせ

全物件
仲介手数料無料
仲介から
入居工事まで
ワンストップで対応
経験豊富なスタッフが
スピード感をもって
対応

周辺での似た条件の物件

非公開物件 多数あり!

お問い合わせフォーム