takeofficeなら掲載物件の仲介手数料は無料です

光和ビル

住所 東京都新宿区新宿2-3-12
交通 東京メトロ丸ノ内線新宿御苑前」 徒歩2分
都営新宿線新宿三丁目」 徒歩3分
JR山手線新宿」 徒歩10分
竣工 1972年09月 構造 RC
規模 地上8階, 地下1階 耐震基準 旧耐震基準
床構造 フリーアクセス 空調設備 個別空調
天井高 2450mm 基準階面積 34坪(112m2)
コンセント容量 - 施工会社

最新の募集状況や類似物件については、
こちらにお問い合わせください。

光和ビル 外観

外観

  • NOW PRINTING

    エントランス

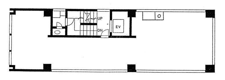
  • 7F

    7F

内見やお見積りなどの各種お問い合わせ

全物件
仲介手数料無料
仲介から
入居工事まで
ワンストップで対応
経験豊富なスタッフが
スピード感をもって
対応

周辺での似た条件の物件

非公開物件 多数あり!

お問い合わせフォーム