takeofficeなら掲載物件の仲介手数料は無料です

旭ビル

住所 東京都新宿区新宿2-13-16
交通 都営新宿線新宿三丁目」 徒歩3分
JR山手線新宿」 徒歩10分
竣工 1988年07月 構造 RC
規模 地上5階, 地下1階 耐震基準 新耐震基準
床構造 フリーアクセス 空調設備 個別空調
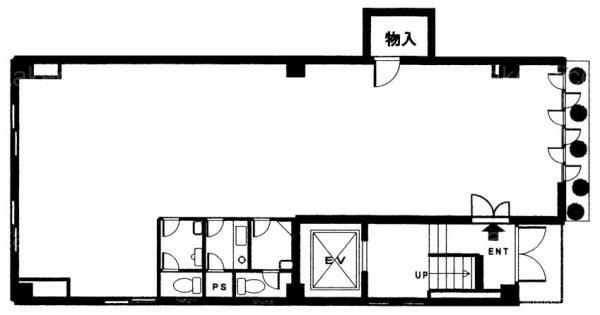
天井高 - 基準階面積 40.05坪(132.4m2)
コンセント容量 - 施工会社

最新の募集状況や類似物件については、
こちらにお問い合わせください。

旭ビル 外観

外観

  • 旭ビル エントランス写真

    エントランス

  • 2~3F

    2~3F

  • 1F

    1F

内見やお見積りなどの各種お問い合わせ

全物件
仲介手数料無料
仲介から
入居工事まで
ワンストップで対応
経験豊富なスタッフが
スピード感をもって
対応

周辺での似た条件の物件

非公開物件 多数あり!

お問い合わせフォーム