takeofficeなら掲載物件の仲介手数料は無料です

世界堂ビル

住所 東京都新宿区新宿3-1-1
交通 都営新宿線新宿三丁目」 徒歩2分
東京メトロ丸ノ内線新宿御苑前」 徒歩6分
JR山手線新宿」 徒歩6分
竣工 1994年03月 構造 SRC
規模 地上9階, 地下3階 耐震基準 新耐震基準
床構造 フリーアクセス 100mm 空調設備 個別空調
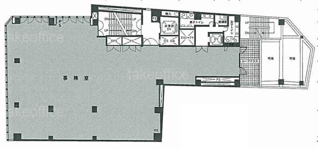
天井高 2900mm 基準階面積 162坪(536m2)
コンセント容量 - 施工会社

最新の募集状況や類似物件については、
こちらにお問い合わせください。

世界堂ビル 外観

外観

内見やお見積りなどの各種お問い合わせ

全物件
仲介手数料無料
仲介から
入居工事まで
ワンストップで対応
経験豊富なスタッフが
スピード感をもって
対応

周辺での似た条件の物件

非公開物件 多数あり!

お問い合わせフォーム