takeofficeなら掲載物件の仲介手数料は無料です

第1スカイビル

住所 東京都新宿区新宿4-4-1
交通 東京メトロ丸ノ内線新宿三丁目」 徒歩1分
JR山手線新宿」 徒歩3分
竣工 2022年05月 構造 鉄骨造
規模 地上7階 耐震基準 新耐震基準
床構造 - 空調設備 -
天井高 3000mm 基準階面積 110.11坪(364m2)
コンセント容量 240VA/m2 施工会社 大成建設

最新の募集状況や類似物件については、
こちらにお問い合わせください。

第1スカイビル 外観

外観

  • NOW PRINTING

    エントランス

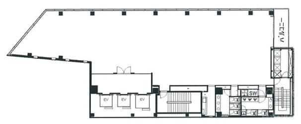
  • 基準階(2~7F)

    基準階(2~7F)

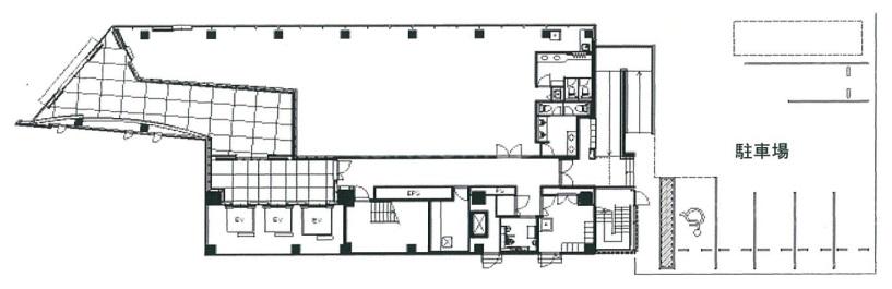
  • 1F

    1F

内見やお見積りなどの各種お問い合わせ

全物件
仲介手数料無料
仲介から
入居工事まで
ワンストップで対応
経験豊富なスタッフが
スピード感をもって
対応

周辺での似た条件の物件

非公開物件 多数あり!

お問い合わせフォーム