takeofficeなら掲載物件の仲介手数料は無料です

中島ビル

住所 東京都新宿区新宿5-11-22
交通 東京メトロ丸ノ内線新宿三丁目」 徒歩4分
都営大江戸線東新宿」 徒歩6分
東京メトロ丸ノ内線新宿御苑前」 徒歩8分
竣工 1987年10月 構造 RC
規模 地上5階, 地下1階 耐震基準 新耐震基準
床構造 - 空調設備 個別空調
天井高 - 基準階面積 114.92坪(379.9m2)
コンセント容量 - 施工会社

最新の募集状況や類似物件については、
こちらにお問い合わせください。

中島ビル 外観

外観

  • NOW PRINTING

    エントランス

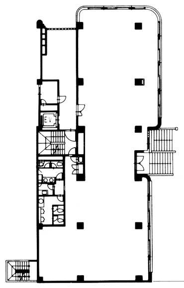
  • 1F

    1F

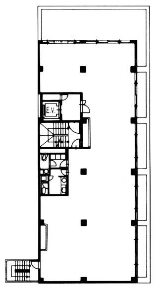
  • 2F

    2F

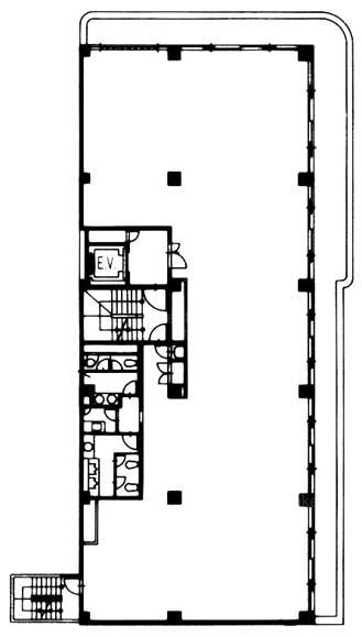
  • 3F

    3F

  • 4F

    4F

  • 5F

    5F

内見やお見積りなどの各種お問い合わせ

全物件
仲介手数料無料
仲介から
入居工事まで
ワンストップで対応
経験豊富なスタッフが
スピード感をもって
対応

周辺での似た条件の物件

非公開物件 多数あり!

お問い合わせフォーム