takeofficeなら掲載物件の仲介手数料は無料です

新宿野村證券ビル

住所 東京都新宿区新宿5-17-9
交通 東京メトロ丸ノ内線新宿三丁目」 徒歩3分
西武新宿線西武新宿」 徒歩4分
JR山手線新宿」 徒歩5分
竣工 2017年03月 構造 鉄骨造+SRC
規模 地上8階, 地下1階 耐震基準 新耐震基準
床構造 フリーアクセス 100mm 空調設備 個別空調
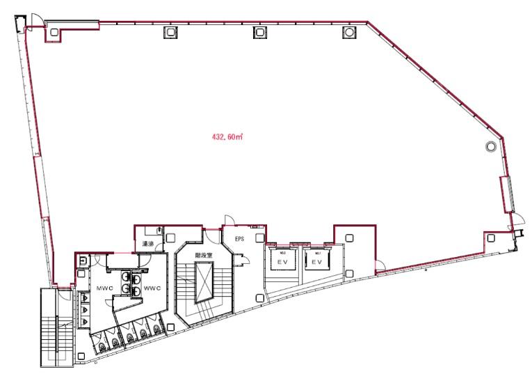
天井高 2700mm 基準階面積 130.86坪(432.6m2)
コンセント容量 - 施工会社

最新の募集状況や類似物件については、
こちらにお問い合わせください。

新宿野村證券ビル 外観

外観

内見やお見積りなどの各種お問い合わせ

全物件
仲介手数料無料
仲介から
入居工事まで
ワンストップで対応
経験豊富なスタッフが
スピード感をもって
対応

周辺での似た条件の物件

非公開物件 多数あり!

お問い合わせフォーム