takeofficeなら掲載物件の仲介手数料は無料です

ラウンドクロス新宿5丁目

住所 東京都新宿区新宿5-17-5
交通 東京メトロ丸ノ内線新宿三丁目」 徒歩3分
都営大江戸線東新宿」 徒歩7分
JR山手線新宿」 徒歩9分
竣工 2006年11月 構造 鉄骨造
規模 地上10階, 地下2階 耐震基準 新耐震基準
床構造 フリーアクセス 70mm 空調設備 個別空調
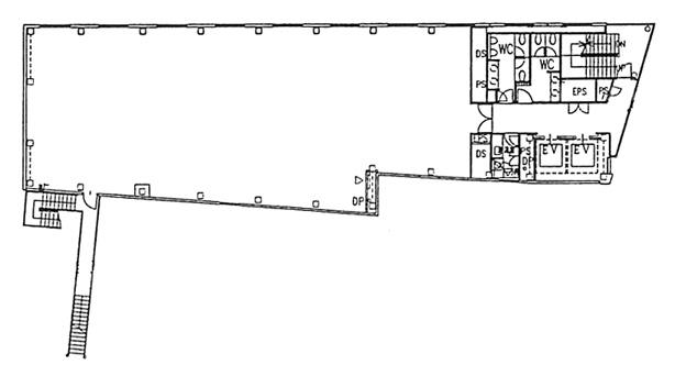
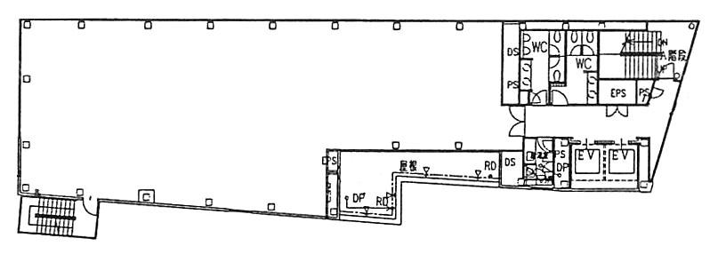
天井高 2600mm 基準階面積 88.14坪(291.37m2)
コンセント容量 50VA/m2 施工会社 清水建設
坪面積 用途 賃料 坪単価 共益費 入居可能日
8 88.03坪 事務所 募集終了登録日: 2024年06月20日
ラウンドクロス新宿5丁目 外観

外観

建物パンフレット

建物パンフレットは作成時点のものであり、また計画段階のものも含まれる為、実際とは異なる場合がございます。

内見やお見積りなどの各種お問い合わせ

全物件
仲介手数料無料
仲介から
入居工事まで
ワンストップで対応
経験豊富なスタッフが
スピード感をもって
対応

※「ご相談」と記載されている項目について
賃貸人が募集賃料条件を守秘義務の関係から明示していない場合に、【ご相談】と記載しております。
フリーレント(賃料免除)期間、使用面積、入居時期、テナント様の与信などによりご提示できる条件が若干変化いたします。
お手数ですが、詳細につきましては、上記よりお問い合わせください。

周辺での似た条件の物件

非公開物件 多数あり!

お問い合わせフォーム