takeofficeなら掲載物件の仲介手数料は無料です

ヒューリック新宿5丁目ビル

住所 東京都新宿区新宿5-9-2
交通 東京メトロ丸ノ内線新宿三丁目」 徒歩3分
竣工 2010年12月 構造 鉄骨造+SRC
規模 地上9階, 地下2階 耐震基準 新耐震基準
床構造 フリーアクセス 100mm 空調設備 個別空調
天井高 2900mm 基準階面積 149.35坪(493.72m2)
コンセント容量 60VA/m2 施工会社 清水建設

最新の募集状況や類似物件については、
こちらにお問い合わせください。

ヒューリック新宿5丁目ビル 外観

外観

  • NOW PRINTING

    エントランス

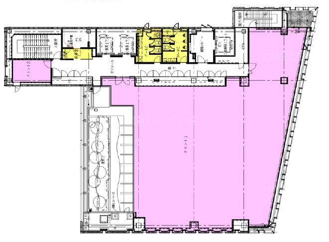
  • 基準階(4~7F)

    基準階(4~7F)

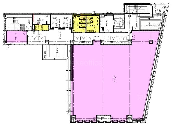
  • 3F

    3F

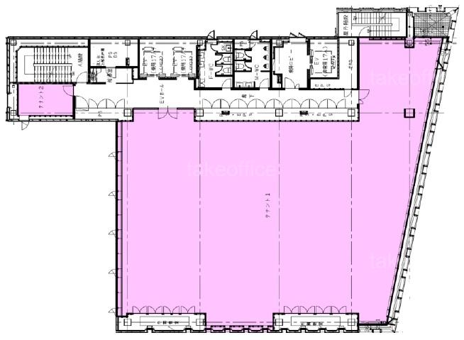
  • 8F

    8F

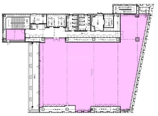
  • 9F

    9F

内見やお見積りなどの各種お問い合わせ

全物件
仲介手数料無料
仲介から
入居工事まで
ワンストップで対応
経験豊富なスタッフが
スピード感をもって
対応

周辺での似た条件の物件

非公開物件 多数あり!

お問い合わせフォーム