takeofficeなら掲載物件の仲介手数料は無料です

市谷大東ビル

住所 東京都新宿区市谷台町6-3
交通 都営新宿線曙橋」 徒歩2分
東京メトロ丸ノ内線四谷三丁目」 徒歩10分
竣工 1987年08月 構造 RC
規模 地上5階, 地下1階 耐震基準 新耐震基準
床構造 フリーアクセス 50mm 空調設備 セントラル+個別
天井高 2450mm 基準階面積 193.34坪(639.14m2)
コンセント容量 53VA/m2 施工会社 中野組(現ナカノフドー建設)

最新の募集状況や類似物件については、
こちらにお問い合わせください。

市谷大東ビル 外観

外観

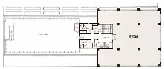
建物パンフレット

建物パンフレットは作成時点のものであり、また計画段階のものも含まれる為、実際とは異なる場合がございます。

内見やお見積りなどの各種お問い合わせ

全物件
仲介手数料無料
仲介から
入居工事まで
ワンストップで対応
経験豊富なスタッフが
スピード感をもって
対応

周辺での似た条件の物件

非公開物件 多数あり!

お問い合わせフォーム