takeofficeなら掲載物件の仲介手数料は無料です

ソフィアM

住所 東京都新宿区住吉町2-10
交通 都営新宿線曙橋」 徒歩2分
東京メトロ丸ノ内線四谷三丁目」 徒歩8分
竣工 1989年02月 構造 鉄骨造+RC
規模 地上9階, 地下1階 耐震基準 新耐震基準
床構造 - 空調設備 個別空調
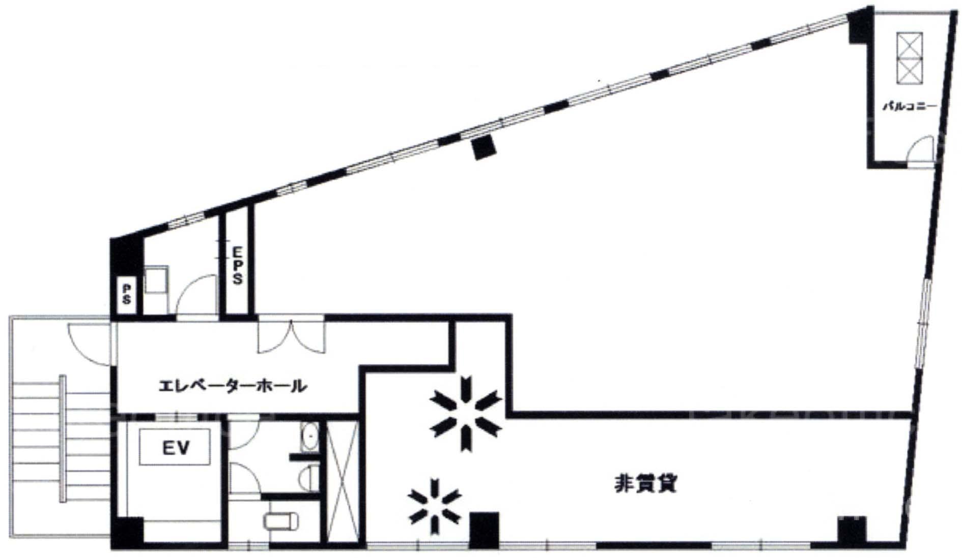
天井高 - 基準階面積 34.57坪(114.28m2)
コンセント容量 - 施工会社

最新の募集状況や類似物件については、
こちらにお問い合わせください。

ソフィアM 外観

外観

  • NOW PRINTING

    エントランス

  • 基準階

    基準階

  • 9F

    9F

内見やお見積りなどの各種お問い合わせ

全物件
仲介手数料無料
仲介から
入居工事まで
ワンストップで対応
経験豊富なスタッフが
スピード感をもって
対応

周辺での似た条件の物件

非公開物件 多数あり!

お問い合わせフォーム