takeofficeなら掲載物件の仲介手数料は無料です

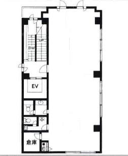
新宿MYビル

住所 東京都新宿区富久町16-15
交通 東京メトロ丸ノ内線新宿御苑前」 徒歩5分
JR山手線新宿」 徒歩15分
東京メトロ丸ノ内線新宿三丁目」 徒歩7分
竣工 1997年02月 構造 鉄骨造
規模 地上4階, 地下0階 耐震基準 新耐震基準
床構造 - 空調設備 個別空調
天井高 - 基準階面積 --
コンセント容量 - 施工会社

最新の募集状況や類似物件については、
こちらにお問い合わせください。

新宿MYビル 外観

外観

  • NOW PRINTING

    エントランス

内見やお見積りなどの各種お問い合わせ

全物件
仲介手数料無料
仲介から
入居工事まで
ワンストップで対応
経験豊富なスタッフが
スピード感をもって
対応

周辺での似た条件の物件

非公開物件 多数あり!

お問い合わせフォーム