takeofficeなら掲載物件の仲介手数料は無料です

新宿余丁町ビル

住所 東京都新宿区余丁町10-10
交通 都営大江戸線若松河田」 徒歩2分
都営新宿線曙橋」 徒歩13分
竣工 1989年01月 構造 SRC
規模 地上7階, 地下1階 耐震基準 新耐震基準
床構造 フリーアクセス 空調設備 個別空調
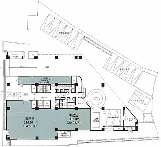
天井高 2500mm 基準階面積 279.84坪(925.09m2)
コンセント容量 - 施工会社

最新の募集状況や類似物件については、
こちらにお問い合わせください。

新宿余丁町ビル 外観

外観

内見やお見積りなどの各種お問い合わせ

全物件
仲介手数料無料
仲介から
入居工事まで
ワンストップで対応
経験豊富なスタッフが
スピード感をもって
対応

周辺での似た条件の物件

非公開物件 多数あり!

お問い合わせフォーム